

一、产品概述
W-VG系列无油立式真空增压机是我公司新开发产品。特别适用于需要提供较高排气压力的场合。例如CO、CO2、H2、CH4解析气等气体的变压吸附过程。以往在该工艺场合只能使用真空泵配套增压机(或风机及压缩机)构成系统来实现。但是该系统在使用中有很多缺陷,用户使用后反映效果不佳。本产品的问世一举解决了长期困扰该行业的设备瓶颈困局,用户使用后反映良好。
二、产品特点
具体来讲和旧系统相比该产品有如下特点:
1.工作压力范围宽。该产品有很宽的工作适应范围可以单独作为增压机使用,增压上限可达350kPa;作为变压吸附专用泵或做气力输送泵使用时,在进口气量充沛的情况下,进口可以提供25000~5000Pa(A)吸气压力,出口可以提供0.15~0.35MPa(G)排气压力。
2.流量调节范围广。只要产品选型合适,工作流量可以从0到满负荷状态任意调节;克服了旧型号流量单一固定所造成的无谓功耗。只要管路配置合适,可以一机多用。即用一台机组配多个系统。
3.结构紧凑、运行可靠、维修方便。旧型号采用两台泵构成,运行时由于耦合性不好很容易产生设备故障。而且泵与泵之间要用管道连接,增加了很多泄漏环节。新型号在单机上实现了抽真空和气体增压排出的两个动作。由于两个动作合用了同一套动力机构,所以耦合性和协调性没有任何问题。加上采用了整体铸造气缸,气道布置在缸体内部,很大限度地减少了泄漏环节,才能很大限度地提高整机性能。另外,由于采用了级间缓冲罐,保证了顺利实现流量无级调节。
4.占地面积小、节能、节水。和旧型号比占地面积减少1/2;节约能耗1/4;节约水消耗1/3。
5.运行成本低。由于采用了整体优化设计,取消了一套运动机构,提高了整机运行可靠性。从而减少了故障发生的频次,降低了易损件地消耗量,节约了运行成本。
三、附属设备
1、过滤器:(1)当被抽气体含粉尘或固体物料时。
(2)新安装管道系统(法兰式过滤器,用户根据现场情况向我公司订购)。
2、冷凝器:(1)当被抽气体含大量可凝性气体时。
(2)当被抽气体温度超过65℃时。
3、阻液器:当被抽气体中有大量液体时。
4、中和罐:当被抽气体具有腐蚀性时。
5、膨胀节:为避免振动、温差引起管道法兰泄漏,避免管道安装应力,建议安装。
6、缓冲罐:为避免设备的启动冲击。
7、其 它:使用我公司产品时,请详细告知使用情况:
(1)被抽介质(酸、碱、溶剂种类)
(2)介质温度
(3)有无可凝性气体
(4)有无粉尘或固定颗粒
(5)在工艺流程中所处的位置和作用
(6)所需连续运转的时间上限
四、型号、规格、参数
型号、规格、参数见下表:
型号 | 真空度 | 排气压力 | 理论气缸排量 | 进气通径 | 排气通径 | 转速 | 级间缓冲罐容积 | 最大功耗 |
KPa | kPa | m3/min | mm | mm | rpm | L | kw | |
W-VG-9 | 20 | 350 | 9 | 125 | 50 | 270 | 1000 | 45~55 |
W-VG-18 | 20 | 350 | 18 | 160 | 100 | 250 | 1500 | 90~132 |
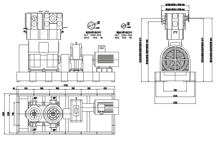
五、外形图和地基图


© 泰兴市泰德立通用机械制造有限公司 版权所有备案号:苏ICP备2025216620号